










Avlu Müzik Akademisi, Konya mimarisinin köklü avlu geleneğinden ilham alarak; müziği, sesi ve sanatı bir araya getiren yaşayan bir merkez olarak tasarlanmıştır. Avlu Müzik Akademisi , Konya mimarisinin Avlu geleneğini ve birleştiriciliğini ön planda tutarak gençlerin sosyalleşebileceği bir alan yaratmayı hedefler.

Avlu Tasarımı ile Konya Halk Mimarisi yaşatılmak ve yansıtılmak istenmiştir. Proje tasarım analiz ve konsept aşamasında iken , Konya Halk Mimarisi araştırılmıştır. Konya kentinin en önemli geleneksel yapılarında Avlu düzeni gözlemlenirken , halk mimarisi ( köy evleri , sosyalleşme alanları ) araştırıldığı zaman yine aynı düzeni korumaya çalıştıkları gözlemlenmiştir. Konya karasal iklime sahip olduğu için Avlu düzeni aynı zamanda mekanda doğal bir iklimlendirme aracı olarak kullanılmıştır. Avlu ve Hayat kavramı birlikte kullanılır. Avlu mekanının insanları birleştirdiğine ve hayatın burada aktığına inanılır.
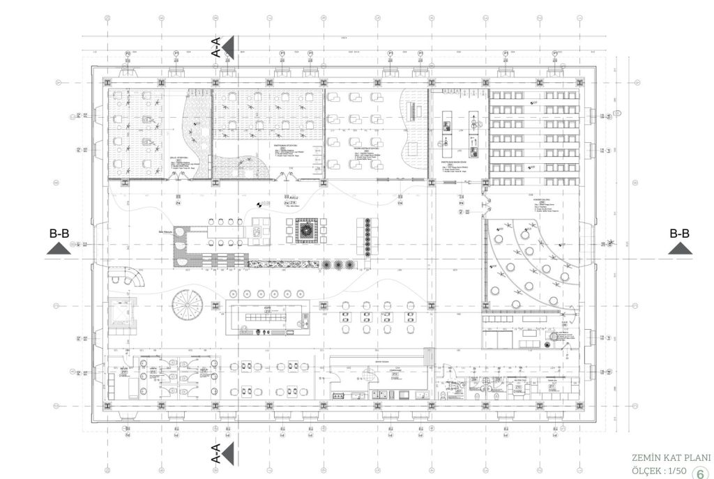
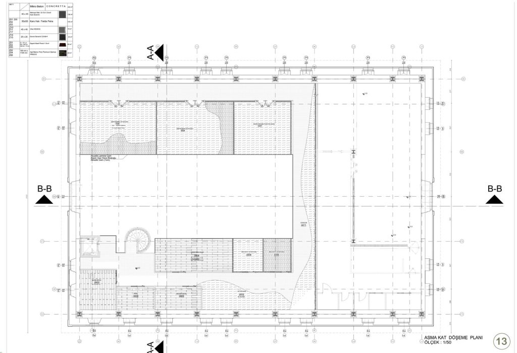
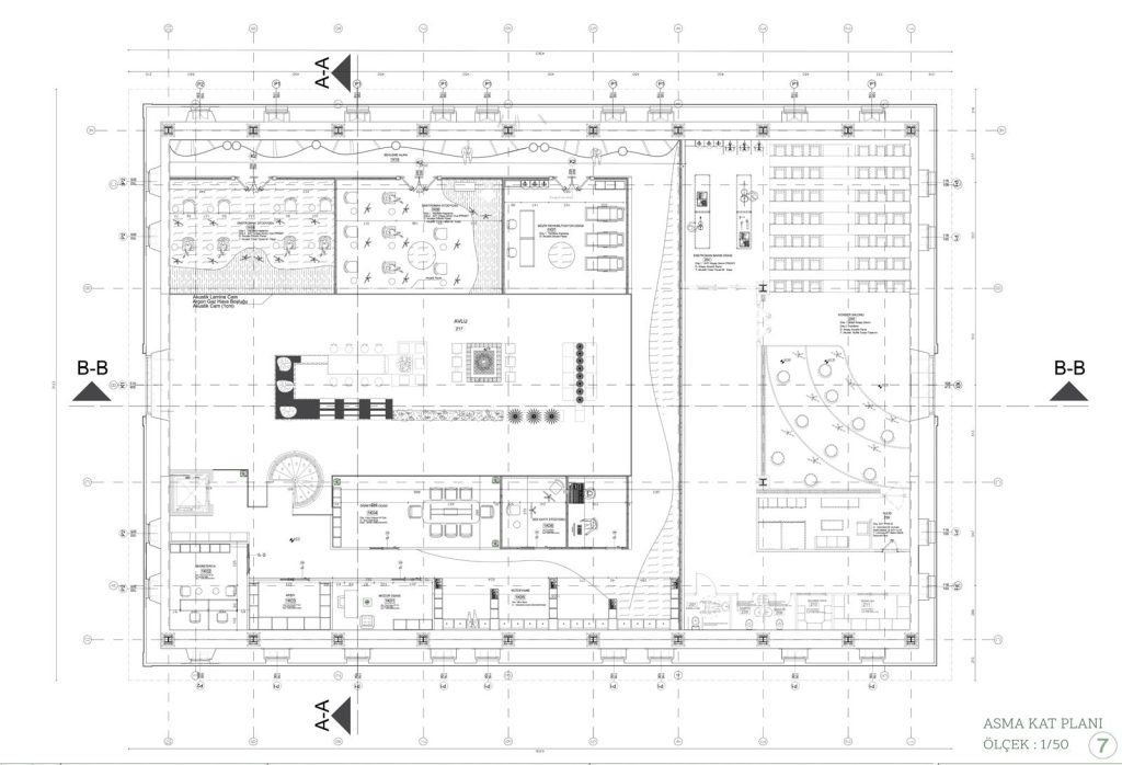
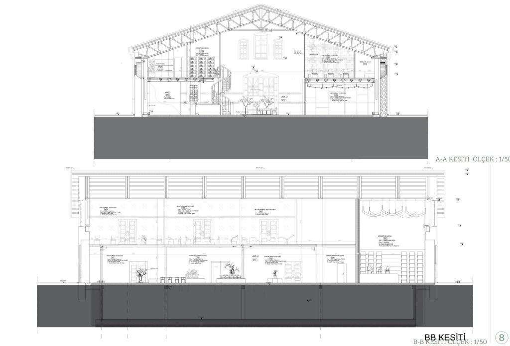
MEKAN KONSEPTİ
- Avlu Tasarımı ile Konya Halk Mimarisi yaşatılmak ve yansıtılmak istenmiştir.
- Avlu mekanını özel tasarım oturma elemanları , çalışma alanı ve sosyalleşme alanları peyzaj ile güçlendirilmiştir
- Avlu mekanında çeşitli bitkiler ,süs havuzu , hafif beton malzeme ve taş duvarlar ile doğa – mekan ilişkisi güçlendirilmiştir.
- Avlu Mekanı çatı yüksekliği , cam cephesi , merkezi peyzajı ile birleştirici ferah bir ortam sunmaktadır.
- Asma Kat bölümünün avlu ‘ ya bakan cephesine cam malzeme kullanılmıştır.

