Bu stüdyo daireyi tasarlarken Cozy Pop Art konseptini sıcaklık ve enerji dengesi üzerine kuruldu . Yumuşak dokular, sıcak ahşap tonları ve davetkâr aydınlatmayı; pop art’ın cesur renkleri ve grafik detaylarıyla bir araya getirildi . Kompakt alanı ferah göstermek için açık planı korurken, ikonik sanat objeleri ve renkli vurgularla mekâna karakter katıldı.





PROJE DETAYLARI
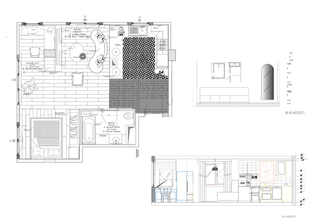
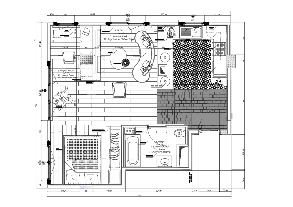
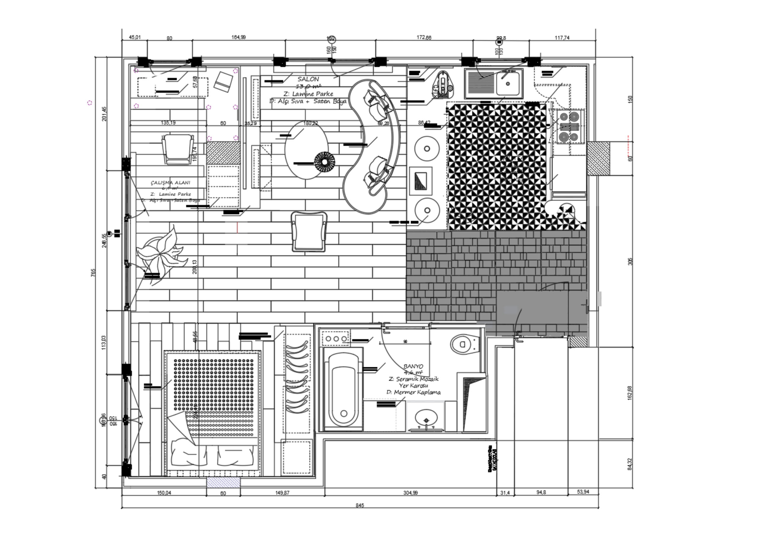
- Stüdyo Daire projesi yaklaşık 40 metre kare toplam alanın her noktasıyla yaşam alanına dönüştürüldü.
- Mutfak mekanı , Amerikan Mutfak sistemiyle çözüldü ve mekanda genişlik algısı hedeflendi.
- Yaşam Alanı tasarımı bölücü bir duvar ile bölünerek Çalışma Alanı yaratıldı.
- Yatak Odası müşteri isteğine göre açık bırakıldı , proje sürecinde sürgülü cam bölücü teklif edildi ancak müşteri talebine göre kaldırıldı.
- Mekanın her noktası renklerin uyumla buluştuğu , boşlukların anlamlı işlevlendiği bir yuvaya dönüştü.


