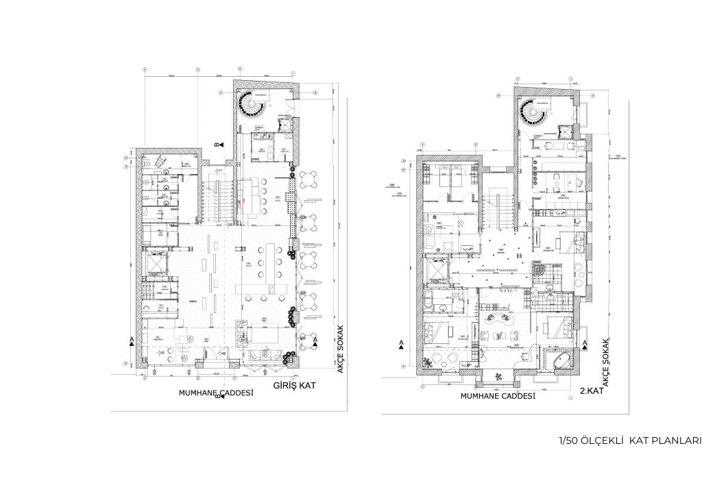
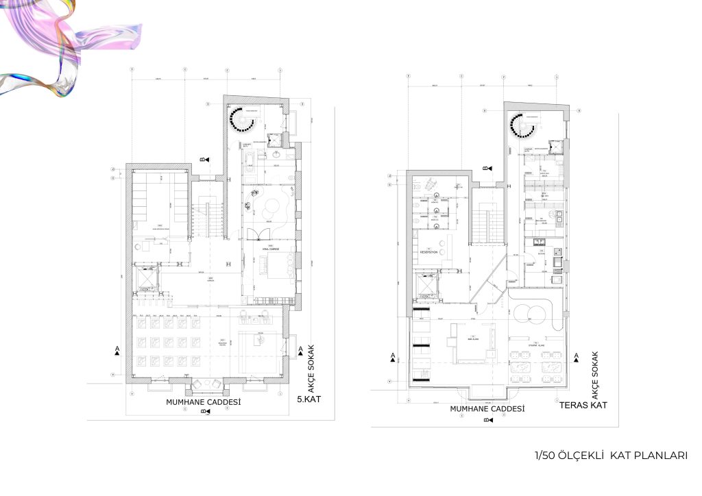
Süveyda Otel , Karaköy ‘ ün kalbinde tasarlanmış , butik bir oteldir. Otel konsept olarak ‘Müzayede Oteli ‘ şeklinde çalışır. İç mekan kurgusu otelin koseptine göre düzenlenmiştir.

MEKAN KURGUSU VE TASARIM
- İç Mekanda kullanılan malzemeler ‘ Maddenin En Saf Hali ‘ konsept başlığının altında kurgulanmıştır.
- Otelin giriş katı, cam bölücüler ve cam sergi üniteleri ile mekan- ortam algısı ile bölünerek içeride hem mekan kurgusu güçlendirilmiş hem de kullanılan cam sergi üniteleri ile otelin kıymetli parçaları sergilenmiştir.,
- Proje kapmasında sadece bir butik otel değil , müzayedelerin yapıldığı bir deneyim alanına dönüştürülmüştür.
- İç Mekanda beton , cam , bakır gibi farklı malzemeler kullanılarak brütalizm notaları ön plana çıkarken metal malzemeler ile de fütüristik bir karakter yaratılmıştır.
- Otelde müze gibi kullanılan yüksek güvenirlikli mekanlar yaratılırken bu mekanlar ışık oyunları ile güçlendirilmiştir.
Proje detaylarını aşağıdan inceleyebilir , kendi projeniz için iletişime geçebilirsiniz.



















